← Back to London Borough of Hillingdon

Status

Approval House extension
Received
25 Sep 2025
New dwellings
0

Summary

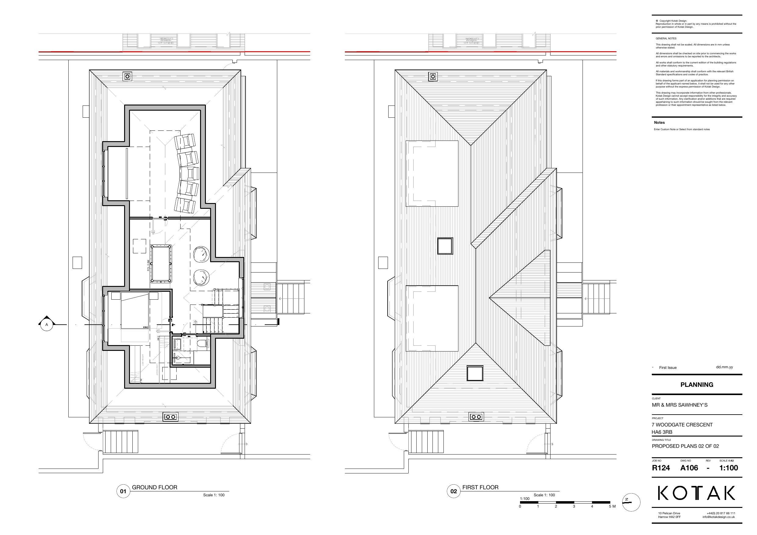
Add one front and two rear dormers, two rooflights, convert garage to habitable use, amend fenestration.

Full Proposal

Erection of 1 x front dormer and 2 x rear dormers, 2 x roof lights to side and rear. Conversion of interior garage to habitable use, amendments to fenestration.

Documents

APPLICATION FORM
Document
Not archived · Council Link
DECISION NOTICE
Document
Not archived · Council Link
EXISTING ELEVATIONS
Document
Not archived · Council Link
EXISTING ELEVATIONS
Document
Not archived · Council Link
EXISTING FLOOR PLANS
Document
Not archived · Council Link
EXISTING ROOF PLANS
Document
Not archived · Council Link
LOCATION PLAN
Document
Not archived · Council Link
OFFICERS REPORTS
Document
Not archived · Council Link
PLAN AMENDED
Document
Not archived · Council Link
PLAN AMENDED
Document
Not archived · Council Link
PLAN AMENDED
Document
Not archived · Council Link
PLAN AMENDED
Document
Not archived · Council Link
PROPOSED ELEVATIONS
Document
Not archived · Council Link
PROPOSED ELEVATIONS
Document
Not archived · Council Link
Document
Archived · Council Link
Document
Archived · Council Link

Take Action

Make your voice heard. Authorities need to hear from people who support new homes.

✉️ Write Email in Support View on Council Portal