← Back to London Borough of Hillingdon

Status

Approval House extension
Received
03 Oct 2025
New dwellings
0

Full Proposal

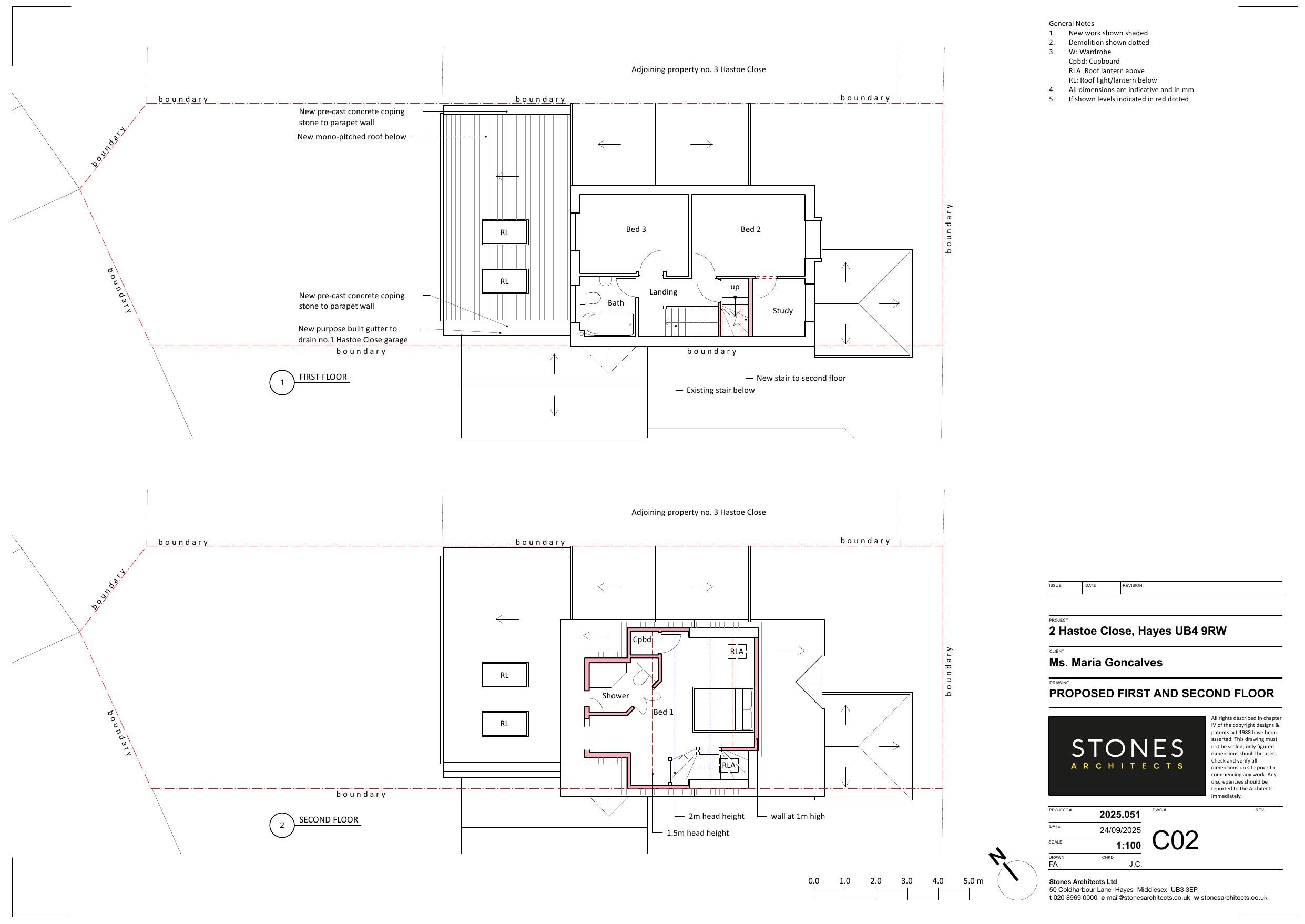
Erection of a single storey rear extension, and conversion of roof space to habitable use comprising of a single dormer window on the rear roof slope with 1no. roof light to the rear and 2no. roof lights to the front roof slope with internal alterations

Documents

APPLICATION FORM
Document
Not archived · Council Link
DECISION NOTICE
Document
Not archived · Council Link
DESIGN AND ACCESS STATEMENT
Document
Not archived · Council Link
EXISTING ELEVATIONS
Document
Not archived · Council Link
EXISTING FLOOR PLANS
Document
Not archived · Council Link
EXISTING FLOOR PLANS
Document
Not archived · Council Link
EXISTING ROOF PLANS
Document
Not archived · Council Link
LOCATION PLAN
Document
Not archived · Council Link
OFFICERS REPORTS
Document
Not archived · Council Link
PROPOSED ELEVATIONS
Document
Not archived · Council Link
PROPOSED ELEVATIONS
Document
Not archived · Council Link
Document
Archived · Council Link
Document
Archived · Council Link

Take Action

Make your voice heard. Authorities need to hear from people who support new homes.

✉️ Write Email in Support View on Council Portal