← Back to London Borough of Hillingdon

Status

Approval New housing
Received
04 Feb 2025
New dwellings
6

Summary

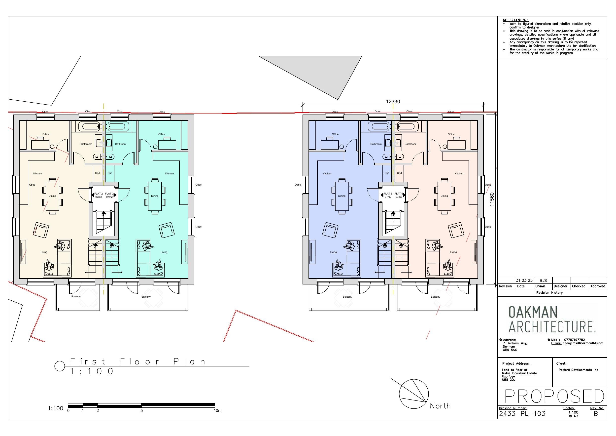
Demolish garages and build two buildings providing six residential units with parking and amenity.

Full Proposal

Demolition of the existing single storey garages and construction of 2no. buildings to provide in total two three-bedroom units and four two-bedroom units with associated parking and amenity (Amended Plans)

Documents

AIR QUALITY REPORT
Document
Not archived · Council Link
APPLICATION FORM
Document
Not archived · Council Link
BLOCK PLAN
Document
Not archived · Council Link
DECISION NOTICE
Document
Not archived · Council Link
DESIGN AND ACCESS STATEMENT
Document
Not archived · Council Link
ENERGY REPORT
Document
Not archived · Council Link
EXISTING ELEVATIONS
Document
Not archived · Council Link
EXISTING FLOOR PLANS
Document
Not archived · Council Link
EXISTING PLAN
Document
Not archived · Council Link
EXISTING ROOF PLANS
Document
Not archived · Council Link
FLOOD AND DRAINAGE ASSESSMENT
Document
Not archived · Council Link
LOCATION PLAN AMENDED
Document
Not archived · Council Link
OFFICERS REPORTS
Document
Not archived · Council Link
PHOTOGRAPHS (Supporting info)
Document
Not archived · Council Link
PLAN
Document
Not archived · Council Link
PLAN
Document
Not archived · Council Link
PLAN
Document
Not archived · Council Link
PLAN AMENDED
Document
Not archived · Council Link
PROPOSED ELEVATIONS
Document
Not archived · Council Link
PROPOSED ELEVATIONS
Document
Not archived · Council Link
PROPOSED ELEVATIONS AMENDED
Document
Not archived · Council Link
PROPOSED ELEVATIONS AMENDED
Document
Not archived · Council Link
PROPOSED ELEVATIONS AMENDED
Document
Not archived · Council Link
Document
Archived · Council Link
Document
Archived · Council Link
Document
Archived · Council Link
PROPOSED PLAN AMENDED
Document
Not archived · Council Link
PROPOSED ROOF PLANS AMENDED
Document
Not archived · Council Link
SITE LAYOUT - PROPOSED
Document
Not archived · Council Link
SITE LAYOUT - PROPOSED AMENDED
Document
Not archived · Council Link
SUPPORTING INFORMATION
Document
Not archived · Council Link

Take Action

Make your voice heard. Authorities need to hear from people who support new homes.

✉️ Write Email in Support View on Council Portal