← Back to Nottingham City Council

Status

Pending Consideration
Received
24 Oct 2025
New dwellings
n/a

Full Proposal

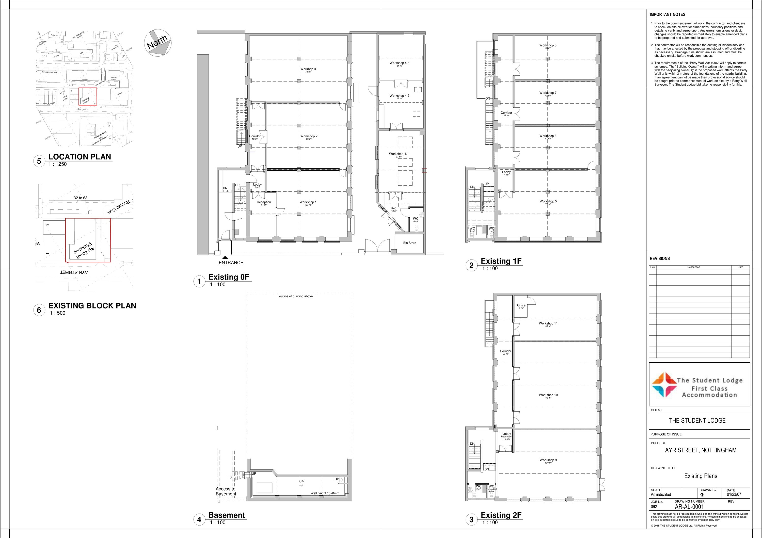
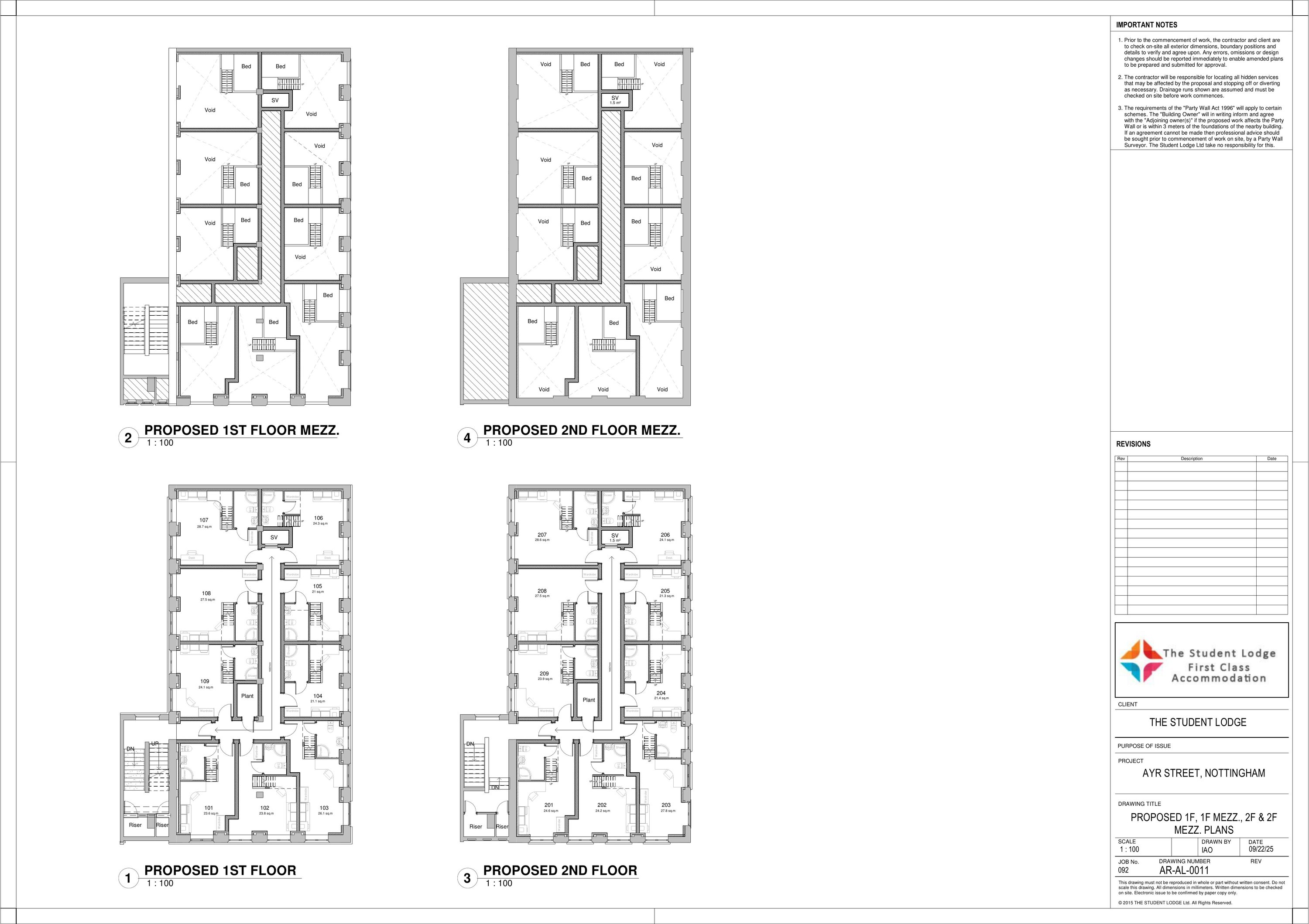
Change of Use of Offices/Workshop to create 33 No. Student Accommodation Studios

Documents

APPLICATION FORM - WITHOUT PERSONAL DATA
Application Form
Not archived · Council Link
DESIGN AND ACCESS STATEMENT
Reports
Not archived · Council Link
EXISTING ELEVATIONS
Layout Plans & Elevations
Not archived · Council Link
PLANNING STATEMENT
Superceded Plans
Not archived · Council Link
PROPOSED ELEVATIONS
Superceded Plans
Not archived · Council Link
Superceded Plans
Archived · Council Link
Superceded Plans
Archived · Council Link
REVISED 1ST & 2ND FLOOR PLANS
Layout Plans & Elevations
Not archived · Council Link
REVISED PLANNING STATEMENT
Reports
Not archived · Council Link
REVISED PROPOSED BASEMENT & GROUND FLOOR PLANS
Layout Plans & Elevations
Not archived · Council Link
REVISED PROPOSED ELEVATIONS
Layout Plans & Elevations
Not archived · Council Link
SECTIONS
Layout Plans & Elevations
Not archived · Council Link
Layout Plans & Elevations
Archived · Council Link
STUDENT MANAGEMENT PLAN
Reports
Not archived · Council Link

Take Action

Make your voice heard. Authorities need to hear from people who support new homes.

✉️ Write Email in Support View on Council Portal