← Back to Nottingham City Council
25/02330/PFUL3
Nottingham City Council · IDOX
Status
Pending Consideration
Received
22 Dec 2025
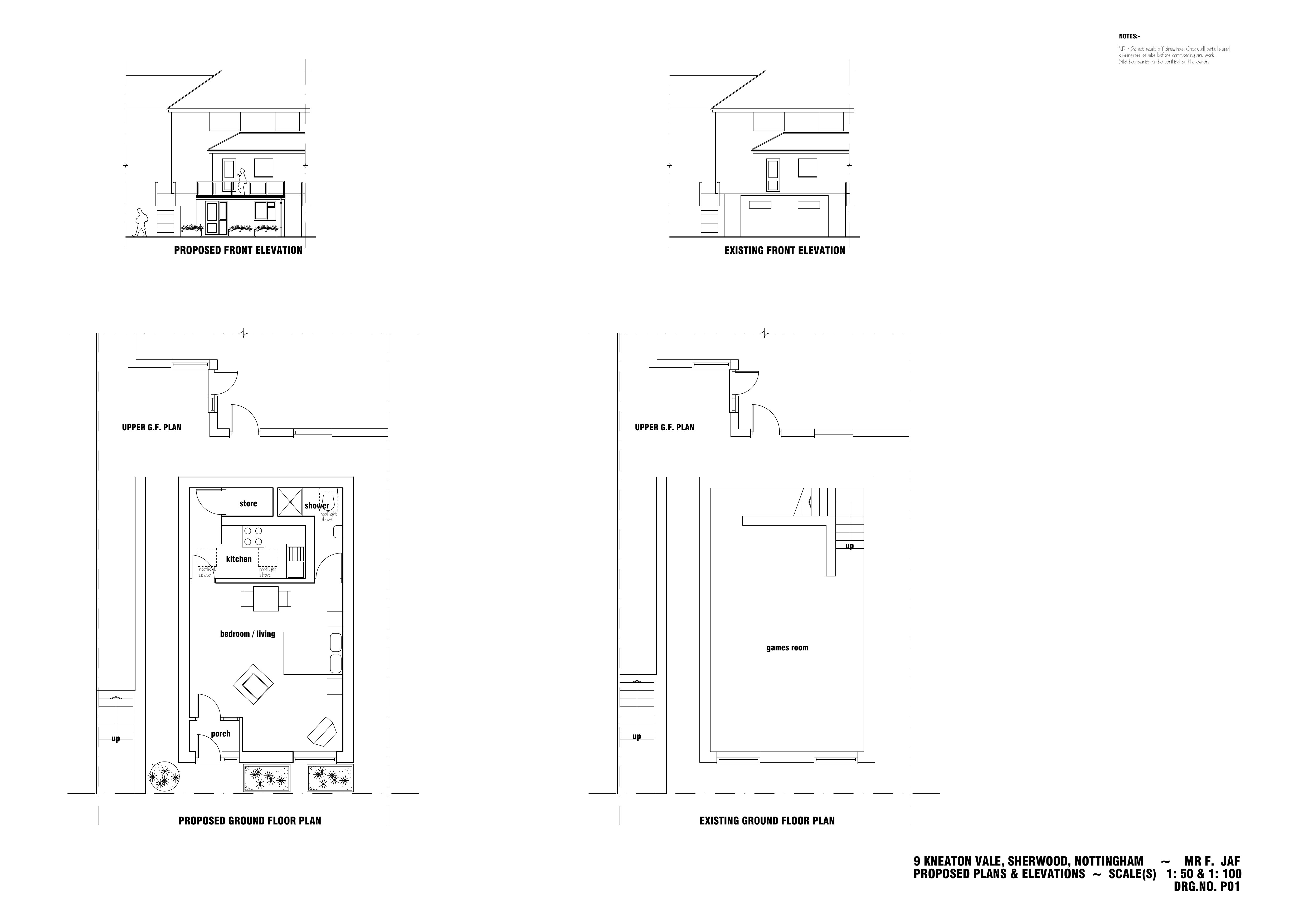
New dwellings
n/a
Full Proposal
Change of use of front subterranean games room to a seperate studio flat. Instalation of balustrading to flat roof above to create a roof terrace.
Documents
Take Action
Make your voice heard. Authorities need to hear from people who support new homes.