← Back to all authorities

Recent applications

Showing the most recent records stored for this authority (max 200).

Over cladding the office block and warehouse and Installation of 3no new A/C external condenser units to the flat roofs of F1, F2 & F3.

Type n/a
Status Pending Decision
Date Last month

Proposed two storey extension to existing House in Multiple Occupation (Use Class C4) to provide 2no. studio units. Amended plans and descri...

Type n/a
Status Pending Decision
Date 22 Oct 2025

Garage conversion to provide additional bedrooms plus link extension to connect garage building to main house

Type n/a
Status Pending Decision
Date 18 Dec 2025

Proposed Detached house (Revised plans received 24/11/25)

Type n/a
Status Pending Decision
Date 17 Jul 2025
Plan thumbnail

Construction of 2 new bedroom dwelling.

Type n/a
Status Pending Decision
Date 19 Dec 2025
Plan thumbnail

Proposed development of a detached single dwellinghouse and associated works.

Type n/a
Status Pending Decision
Date 18 Dec 2025

Conversion of first floor into 2 No. 1 bedroom flats (Amended plans received and description amended to reflect 17/12/2025).

Type n/a
Status Pending Decision
Date 26 Sep 2025
Plan thumbnail

Conversion of former day centre to seven self contained flats (Amended information received 17/11/2025)

Type n/a
Status Pending Decision
Date 25 Sep 2025
Plan thumbnail

Construction of a 2 storey dwelling.

Type n/a
Status Pending Decision
Date 25 Sep 2025
Plan thumbnail

Change of use from 5 bed home to a 4 bed House of Multiple Occupation.

Type n/a
Status Pending Decision
Date 01 Oct 2025

CHANGE OF USE APPLICATION FROM C3 TO C4 HOUSE IN MULTIPLE OCCUPANCY (5x BEDROOM & 2x BATHROOM) AND CREATION OFF ROAD PARKING

Type n/a
Status Pending Decision
Date 29 Sep 2025
Plan thumbnail

Proposed construction of a two storey detached dwelling house. (Coal Mining Report received 04/03/25)(Coal Mining Risk Assessment Received 2...

Type n/a
Status Pending Decision
Date 04 Jan 2025
Plan thumbnail

Proposed housing development for 5 dwellings (Amended plans and description received 26/08/2025) (Drainage Statement received 14/10/2025).

Type n/a
Status Pending Decision
Date 17 Jan 2025
Plan thumbnail

Residential redevelopment and associated works.

Type n/a
Status Pending Decision
Date 31 Jan 2025
Plan thumbnail

Full planning permission for erection of two dwellings with access and associated works.

Type n/a
Status Pending Decision
Date 12 Nov 2025
Plan thumbnail

Demolish workshop and build 17 affordable dwellings with access, parking, drainage and PRoW diversion.

Type n/a
Status Pending Decision
Date 12 Nov 2025

Outline planning for seven residential units adjacent to Brynmair Road.

Type n/a
Status Pending Decision
Date 10 Nov 2025

Erection of Detached Dwelling on Land Accessed from Heol Llechau, Wattstown including, Access Widening and Car Parking (Re-submission of 24/...

Type n/a
Status Pending Decision
Date 21 Nov 2025

Proposed Development of a Detached Dwelling House and Driveway (Amended Red Line Boundary Received 15/12/2025).

Type n/a
Status Pending Decision
Date 17 Nov 2025
Plan thumbnail

Proposed residential development with associated works.

Type n/a
Status Pending Decision
Date 28 Nov 2025

Mixed-use building with ground-floor cafe/restaurant and eleven new residential units.

Type n/a
Status Pending Decision
Date 27 Nov 2025
Plan thumbnail

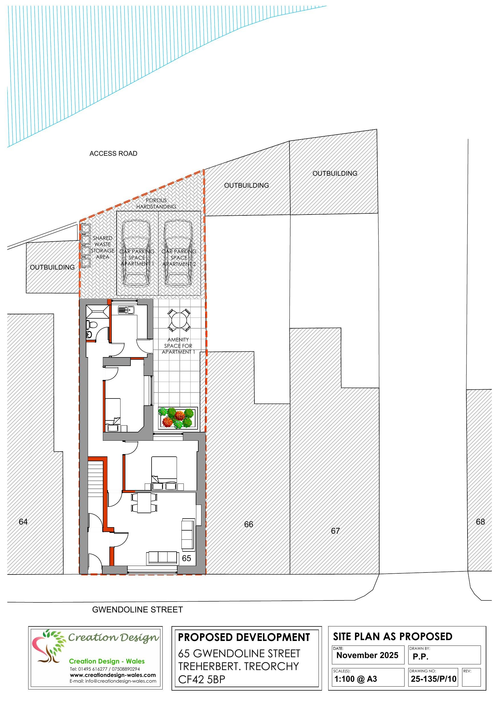
Proposed change of use from single dwelling house to 2 No. 2 bedroom apartments and associated external works.

Type n/a
Status Pending Decision
Date 24 Nov 2025
Plan thumbnail

Subdivision of curtilage and residential development.

Type n/a
Status Pending Decision
Date 22 Nov 2025
Plan thumbnail

Create one bedsit flat and two one‑bed flats.

Type n/a
Status Pending Decision
Date 03 Oct 2025
Plan thumbnail

Change of use from dwelling (C3) to residential care home (C2) for up to four residents; garage demolition.

Type n/a
Status Pending Decision
Date 07 Oct 2025
Plan thumbnail

3No. dwellings, with front and rear gardens, parking spaces and new gated access

Type n/a
Status Pending Decision
Date 14 Oct 2025
Plan thumbnail

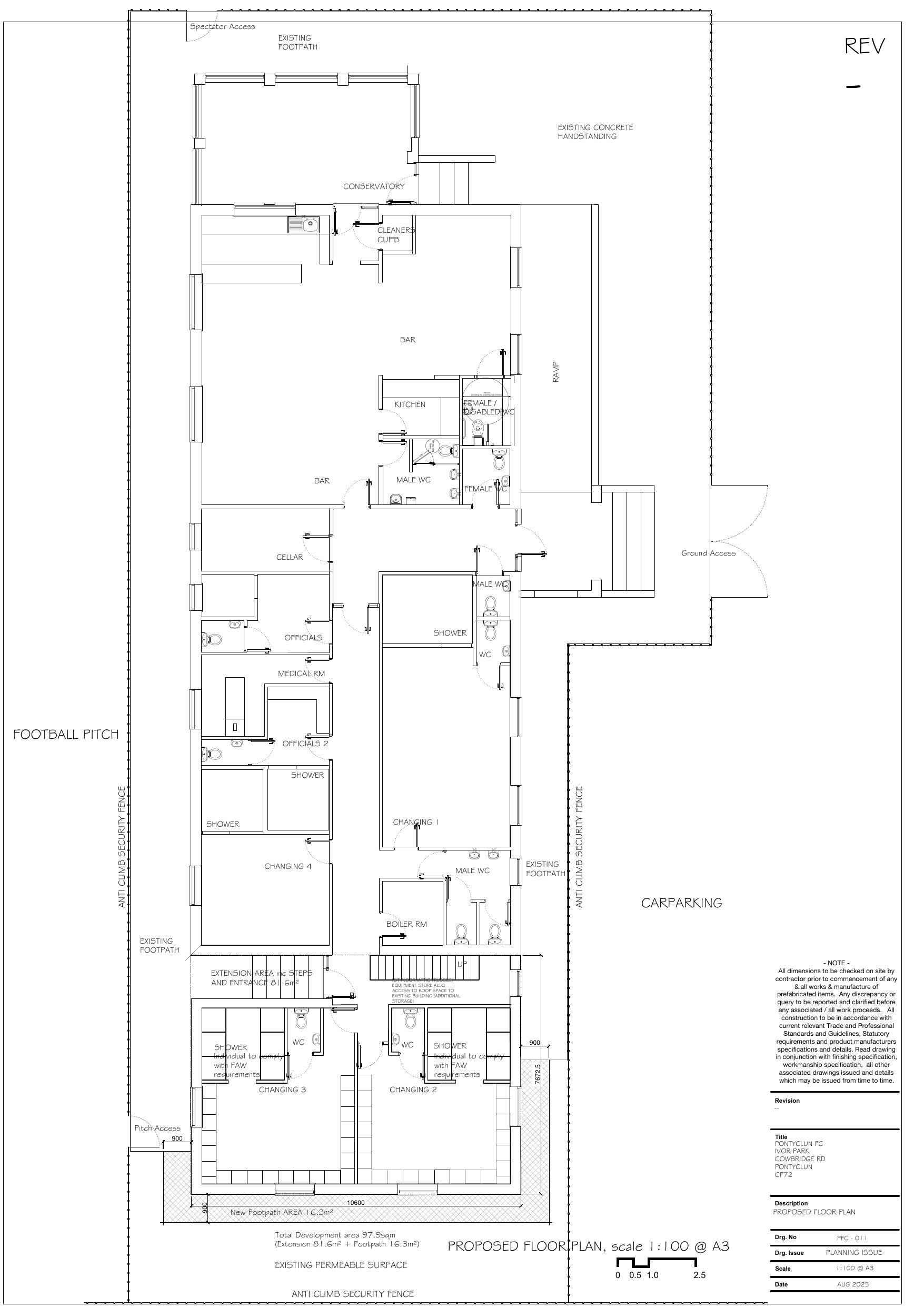
Clubhouse Extension to provide additional changing rooms.

Type n/a
Status Pending Decision
Date 13 Oct 2025

Development of 27 Apartment Dwellings with Associated Access Road and Drainage Features

Type n/a
Status Pending Decision
Date 04 Nov 2025
Plan thumbnail

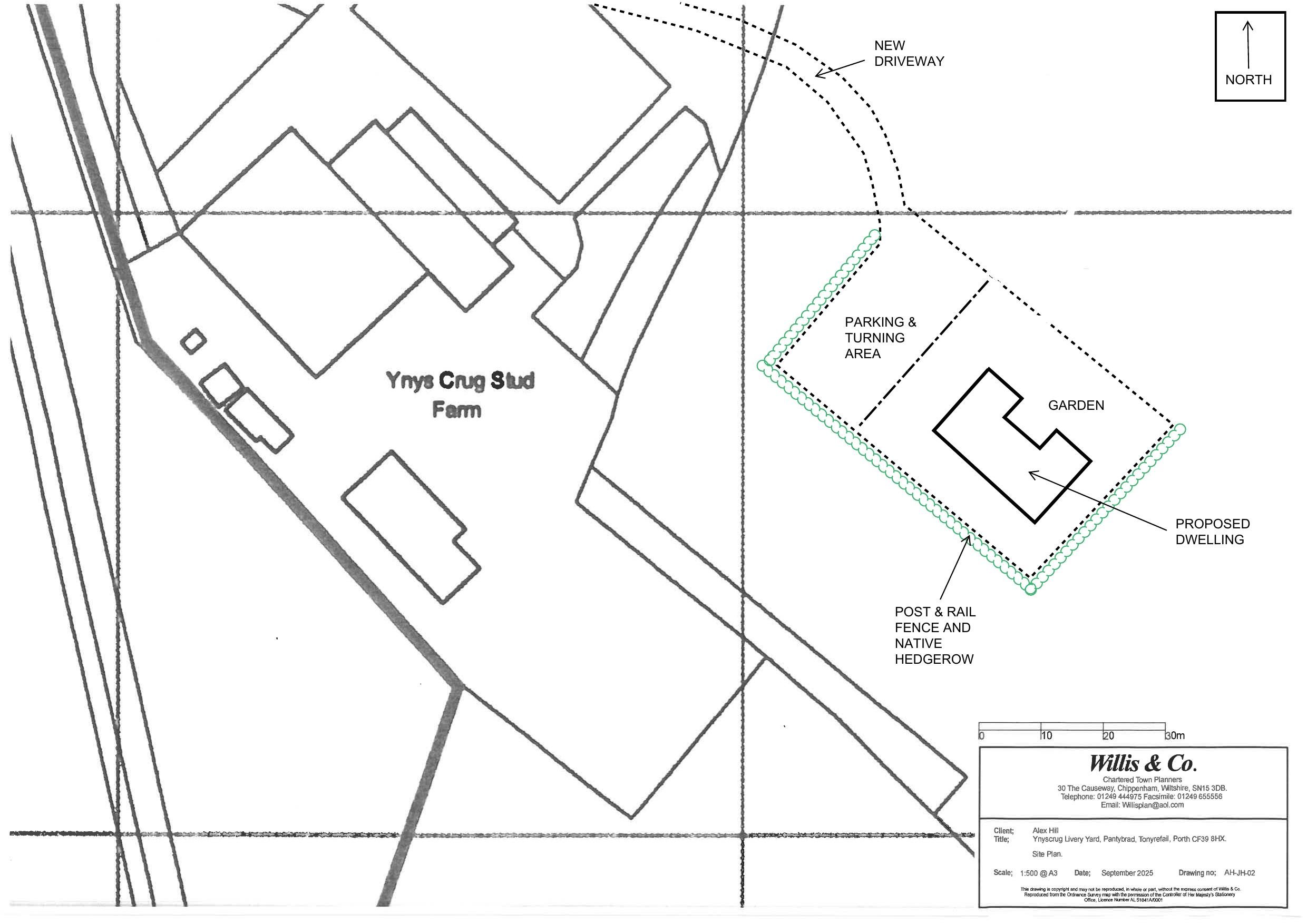
Erection of a permanent rural workers dwelling

Type n/a
Status Pending Decision
Date 04 Nov 2025

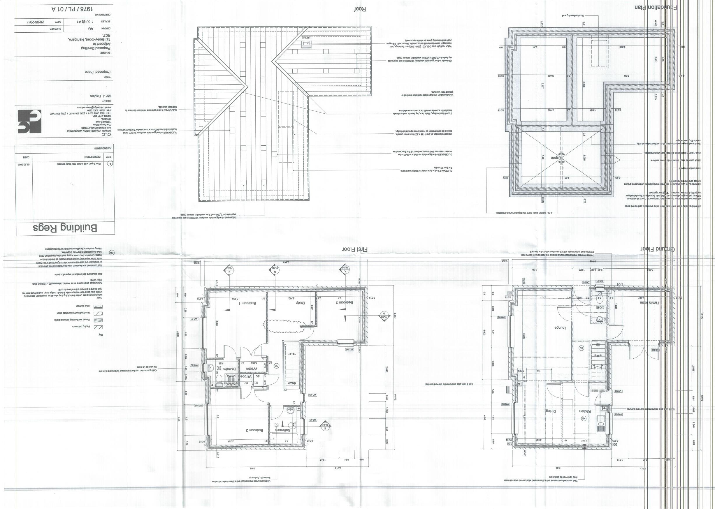
Proposed two-storey extension to for a living room and kitchen area with two - bedroom over together with the formation of a dormer above ex...

Type n/a
Status Pending Decision
Date 17 Nov 2025
Plan thumbnail

Non‑material amendment revising description to 'Change of use from clinic to residential flats'.

Type n/a
Status Decided
Date 07 Oct 2025
Plan thumbnail

Change of use of a residential flat to a housing support office (B1).

Type n/a
Status Decided
Date 01 Oct 2025
Plan thumbnail

Proposed residential development of 16 dwellings with parking, drainage, bin storage, and footpath diversion.

Type n/a
Status Pending Decision
Date 12 Dec 2025

Outline application for one new residential unit on land beside existing dwelling.

Type n/a
Status Decided
Date 05 Aug 2025
Plan thumbnail

Change of use from dwelling (C3) to Children's Residential Home (C2) for up to two children.

Type n/a
Status Pending Decision
Date 13 Aug 2025
Plan thumbnail

Change of use from dwelling (C3a) to Children's Residential Home (C2) for up to two children.

Type n/a
Status Decided
Date 11 Aug 2025
Plan thumbnail

Residential development including car park and associated works.

Type n/a
Status Decided
Date 02 Sep 2025
Plan thumbnail

Outline for three detached dwellings (two 4-bed, one 3/4-bed).

Type n/a
Status Withdrawn
Date 30 Sep 2025
Plan thumbnail

Outline for two semi-detached residential dwellings.

Type n/a
Status Decided
Date 29 Sep 2025
Plan thumbnail

Demolition and redevelopment to residential dwellings with associated works (unit number unspecified).

Type n/a
Status Pending Decision
Date 22 Jul 2025

Outline permission for two detached dwellings.

Type n/a
Status Pending Decision
Date 21 Jul 2025

Retain ground-floor A1; convert first and second floors to C3 residential with private amenity for upper floors.

Type n/a
Status Pending Decision
Date 30 Jul 2025
Plan thumbnail

Sub-division and change of use from bank to ground-floor shops and first/second-floor residential flats.

Type n/a
Status Decided
Date 18 Feb 2025
Plan thumbnail

Outline permission for development of three residential properties with access road.

Type n/a
Status Pending Decision
Date 14 Feb 2025
Plan thumbnail

Erection of 16-bedroom two-storey supervised residential care building with parking and refuse storage.

Type n/a
Status Withdrawn
Date 21 Mar 2025

Conversion of first and second floors into four self-contained flats.

Type n/a
Status Decided
Date 20 Mar 2025

Change of use from dwelling (C3) to residential care home (C2) for up to four residents.

Type n/a
Status Decided
Date 27 Nov 2025