← Back to Winchester City Council

Status

Current
Received
02 Sep 2025
New dwellings
n/a

Full Proposal

Demolition of the existing buildings and erection of a replacement self-build dwellinghouse

Documents

APPLICATION FORM - WITHOUT PERSONAL DATA
Application Form
Not archived · Council Link
BIODIVERSITY CHECKLIST
Background Papers
Not archived · Council Link
BIODIVERSITY CHECKLIST
Background Papers
Not archived · Council Link
CIL FORM 1 (ADDITIONAL INFORMATION)
Background Papers
Not archived · Council Link
DESIGN AND ACCESS STATEMENT
Background Papers
Not archived · Council Link
DESIGN AND ACCESS STATEMENT
Background Papers
Not archived · Council Link
ECOLOGICAL APPRAISAL
Background Papers
Not archived · Council Link
ECOLOGICAL APPRAISAL
Background Papers
Not archived · Council Link
EXISTING AERIAL VIEW
Drawing
Not archived · Council Link
EXISTING ELEVATIONS
Drawing
Not archived · Council Link
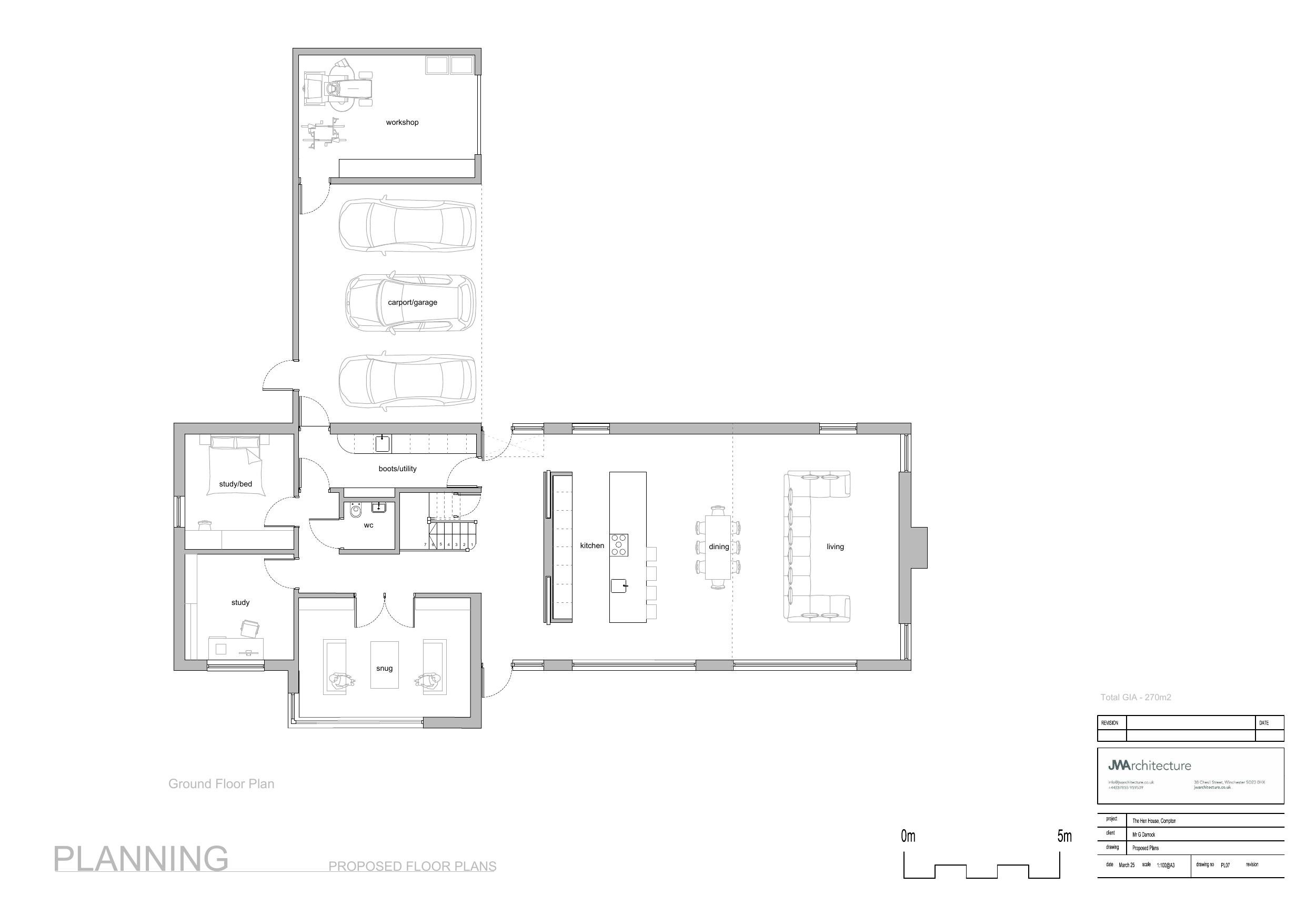
EXISTING FLOOR PLAN
Drawing
Not archived · Council Link
LOCATION/BLOCK PLAN
Drawing
Not archived · Council Link
MATERIALS SHEET
Drawing
Not archived · Council Link
PLANNING STATEMENT
Background Papers
Not archived · Council Link
PLANNING STATEMENT
Background Papers
Not archived · Council Link
PROPOSED ELEVATIONS
Drawing
Not archived · Council Link
PROPOSED ELEVATIONS
Drawing
Not archived · Council Link
Drawing
Archived · Council Link
Drawing
Archived · Council Link
Drawing
Archived · Council Link
SECTION A-A
Drawing
Not archived · Council Link
SECTION B-B
Drawing
Not archived · Council Link
Drawing
Archived · Council Link

Take Action

Make your voice heard. Authorities need to hear from people who support new homes.

✉️ Write Email in Support View on Council Portal