← Back to all authorities

Recent applications

Showing the most recent records stored for this authority (max 200).

A Mulberry tree to be crown thinned by 10% and lifted by two thirds of a metre over shed. Branches on a Cherry tree to be reduced back as a)...

Type n/a
Status Current
Date Last month
Plan thumbnail

Erection of new detached self build dwelling and garage with associated car parking with access from Black Horse Lane

Type n/a
Status Current
Date 05 Dec 2025

We have recently moved into the property and would like to remove a horse chestnut tree (pink blossom) from our garden to help with damp pro...

Type n/a
Status Current
Date Last month
Plan thumbnail

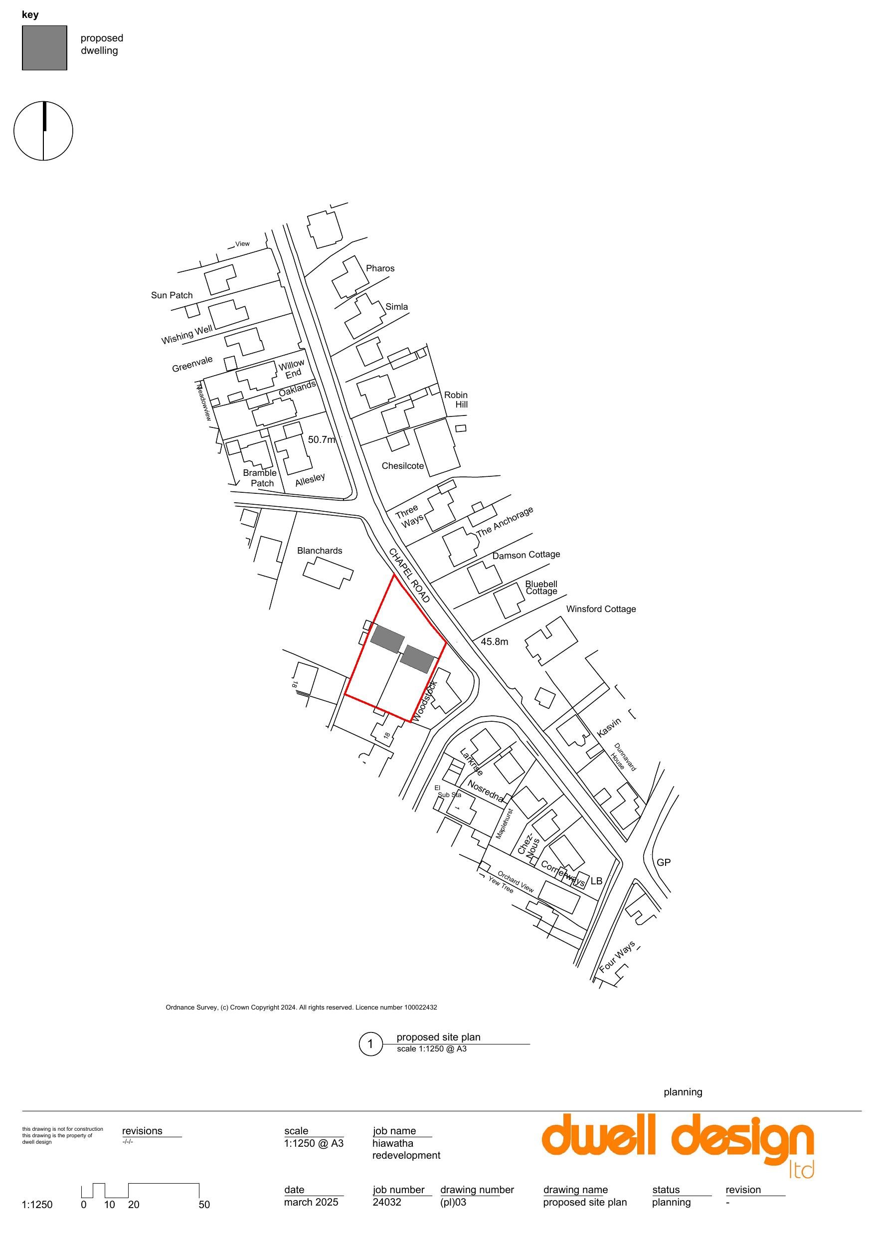
Erection of a 2No. detached self build dwellings and garages with associated car parking along with use of existing access onto Durley Brook...

Type n/a
Status Current
Date 23 Dec 2025
Plan thumbnail

Remove 3no. garages. Construct a new annexe extension to the house. Construct a new single garage to the front of the house.

Type n/a
Status Current
Date 11 Dec 2025

T1 - Cedar - Remove 1 low branch from Cedar that's growing into Conifer. Cut back from house to give 1-2m clearance. Reduce end weight by ap...

Type n/a
Status Current
Date Last month

Erection of 4no. 4-bedroom houses and 2no. 2 bedroom flats with associated access, car parking and landscaping

Type n/a
Status Current
Date 19 Dec 2025
Plan thumbnail

Erection of a barn to house indoor padel tennis courts with associated parking and landscaping

Type n/a
Status Current
Date 05 Dec 2025
Plan thumbnail

Reserved Matters Application of Outline Permission (24/02633/OUT) for new 3 bedroom detached dwelling within the garden of 15 Princes Close ...

Type n/a
Status Current
Date 04 Dec 2025

Change of use of Barnes House from a House in Multiple Occupation (HMO) to a Dermatology Clinic within Use Class E, and the demolition of 7n...

Type n/a
Status Current
Date 01 Dec 2025

Part demolition of existing house/garage and addition of dormer windows and a detached garage

Type n/a
Status Current
Date 01 Dec 2025

Discharge of Planning Condition 6 (cross sections), 7 (dwelling emission rate), 9 (foul and surface water disposal), 12 (construction manage...

Type n/a
Status Current
Date 11 Dec 2025
Plan thumbnail

Demolition of existing buildings and the erection of eight dwelling houses, with associated landscaping, access and parking

Type n/a
Status Current
Date 11 Dec 2025
Plan thumbnail

Demolition of existing building and the erection of 9 residential dwellings, with associated access, landscaping and parking.

Type n/a
Status Current
Date 09 Dec 2025

Five Self Build Dwellings and the creation of a new access

Type n/a
Status Current
Date 18 Dec 2025

Digging and forming a swimming pool that is 10m long, 4m wide and 1.3m constant depth. Creating hard standing adjacent for a patio. Building...

Type n/a
Status Current
Date 17 Dec 2025

Construction of a garden office (approximately 7m X 4m). Confirmation of land as residential. (Amended Description)

Type n/a
Status Current
Date 17 Dec 2025
Plan thumbnail

Demolition of the existing buildings and erection of a replacement self-build dwellinghouse

Type n/a
Status Current
Date 02 Sep 2025
Plan thumbnail

The construction of a new self-build dwelling (Amended Description)

Type n/a
Status Current
Date 08 Sep 2025

Two-storey and single storey extension to house and erection of detached garage with annexe

Type n/a
Status Current
Date 19 Sep 2025
Plan thumbnail

2 storey side and rear extensions to main house New 2nd floor to main house Expansion of first floor over existing garage, Expansion of exis...

Type n/a
Status Current
Date 18 Sep 2025

Conversion of detached agricultural barn to single dwelling house.

Type n/a
Status Unknown
Date 17 Sep 2025
Plan thumbnail

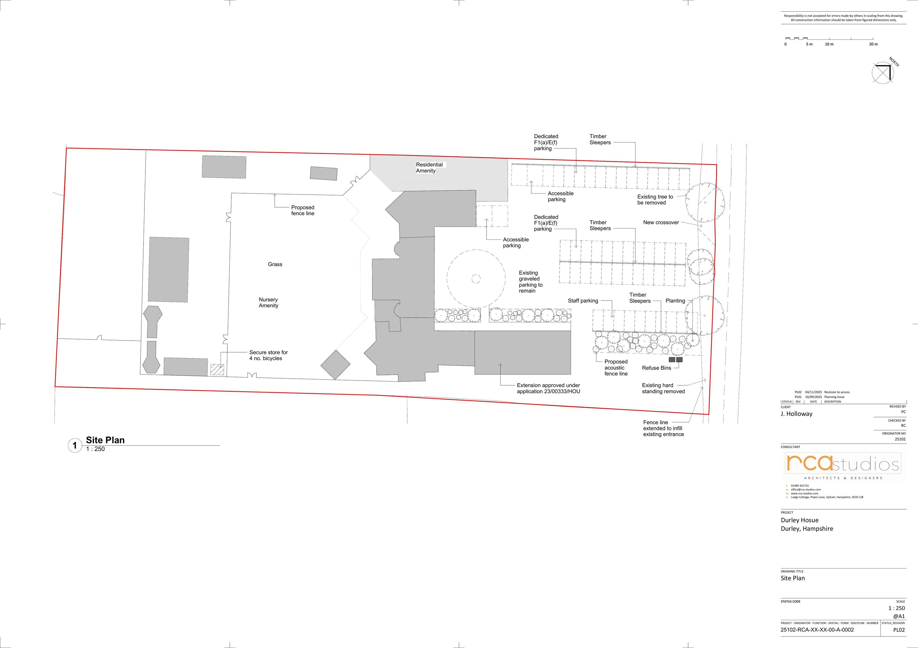
Part Change of use of Durley House (C3), to a nursery with wrap around care; all within Use Classes E(f) and F1(a), and rooms ancillary to t...

Type n/a
Status Current
Date 30 Sep 2025
Plan thumbnail

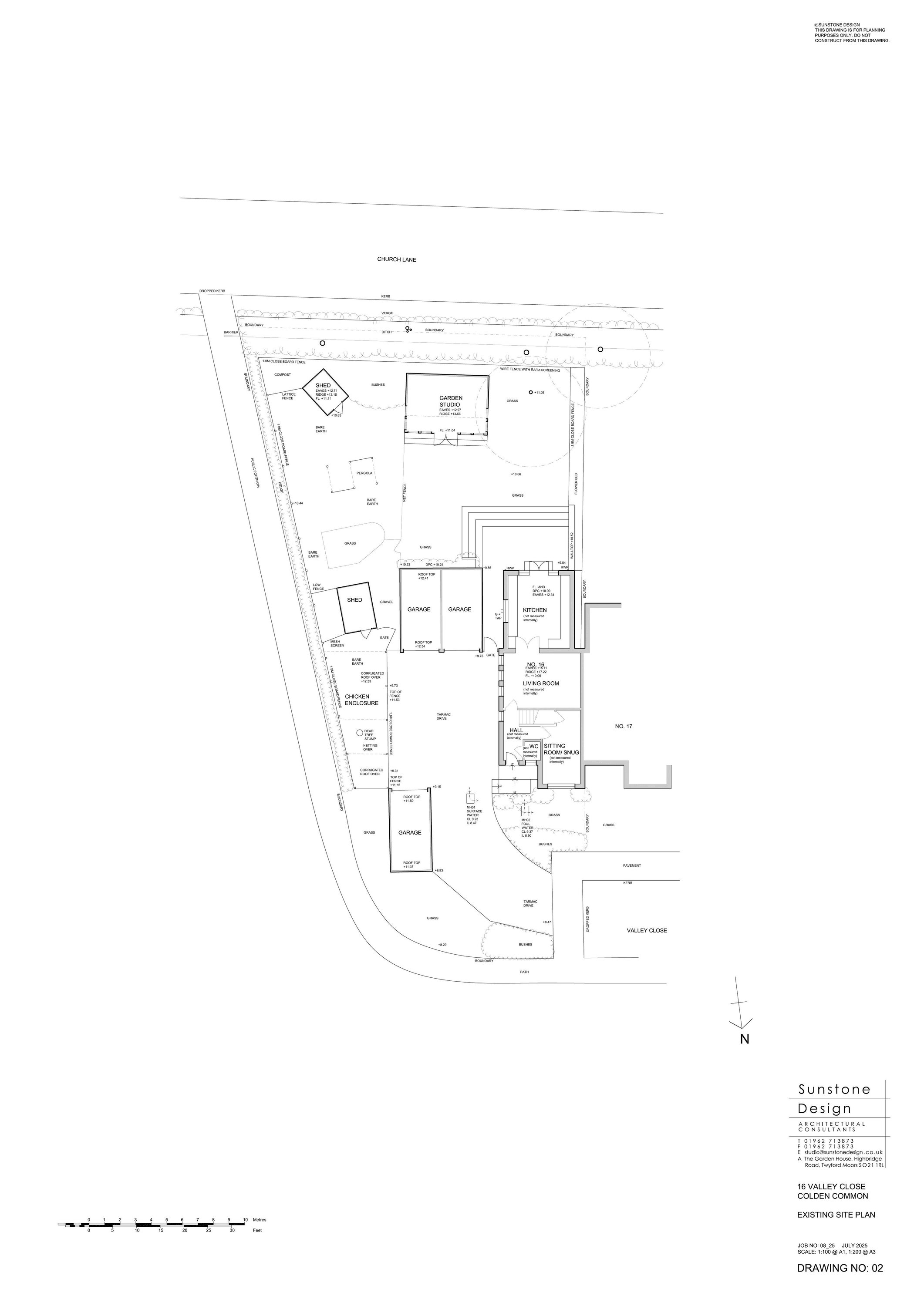
Part demolish and convert care home to three dwellings and erect five additional dwellings.

Type n/a
Status Current
Date 24 Oct 2025
Plan thumbnail

Link extension to connect pool house to main dwelling and flat roof kitchen extension.

Type n/a
Status Current
Date 23 Oct 2025
Plan thumbnail

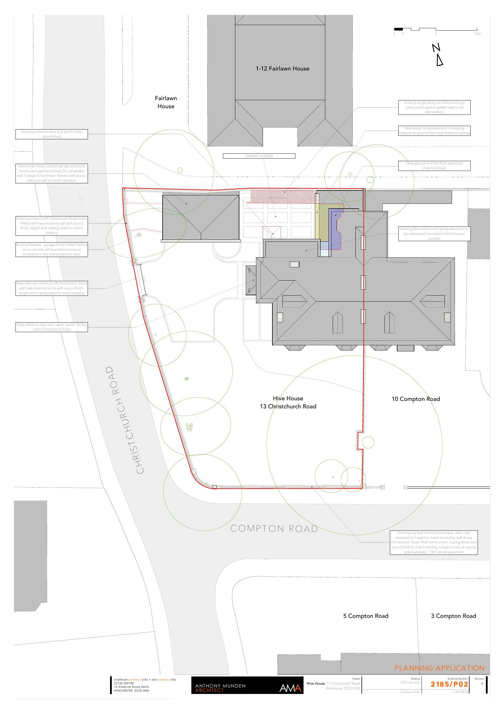
New principal house entrance on the west elevation. Extensions and alterations to the north side of the house. Demolition of external lean-t...

Type n/a
Status Current
Date 23 Oct 2025
Plan thumbnail

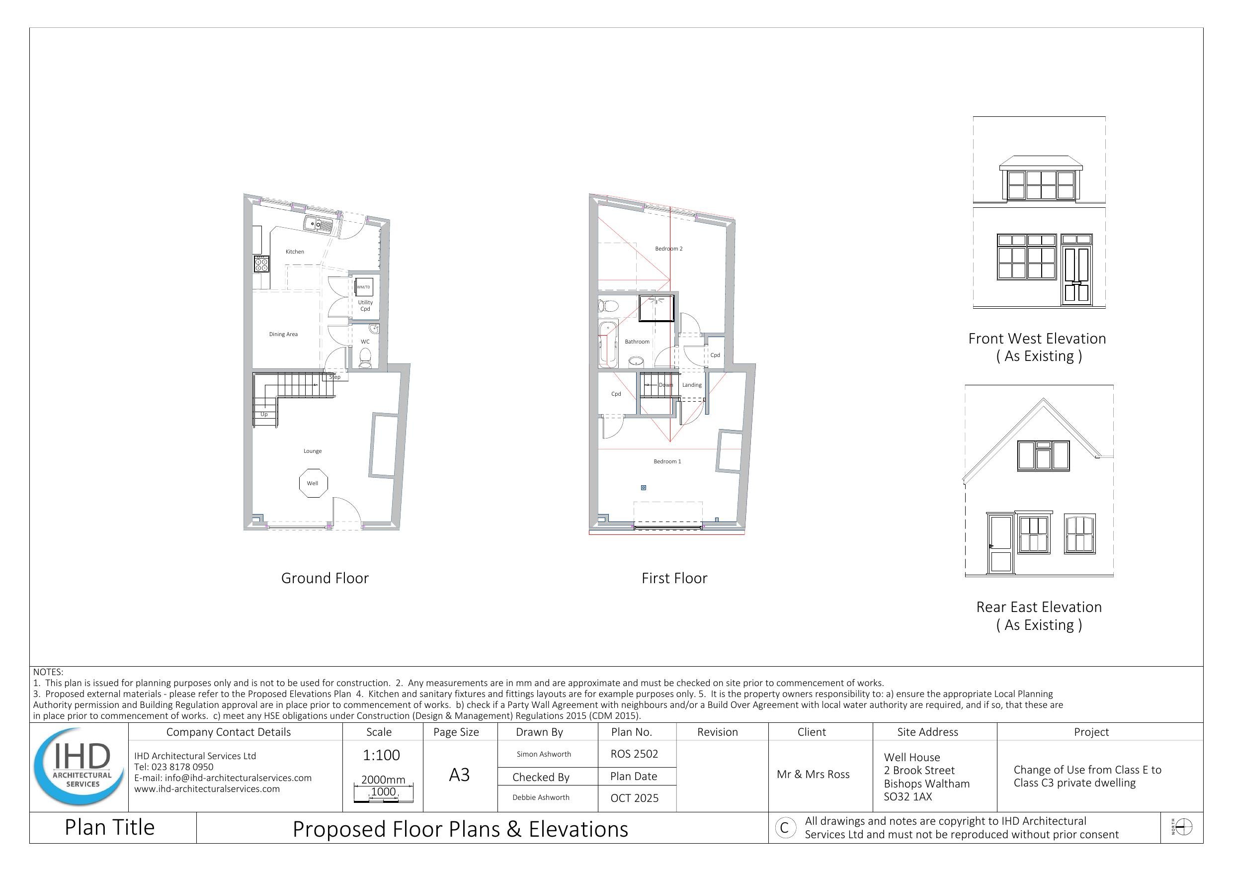
Application for Prior Approval pursuant to the change of use from Class E to private dwelling Class C3 under Class MA of the General Permitt...

Type n/a
Status Unknown
Date 31 Oct 2025

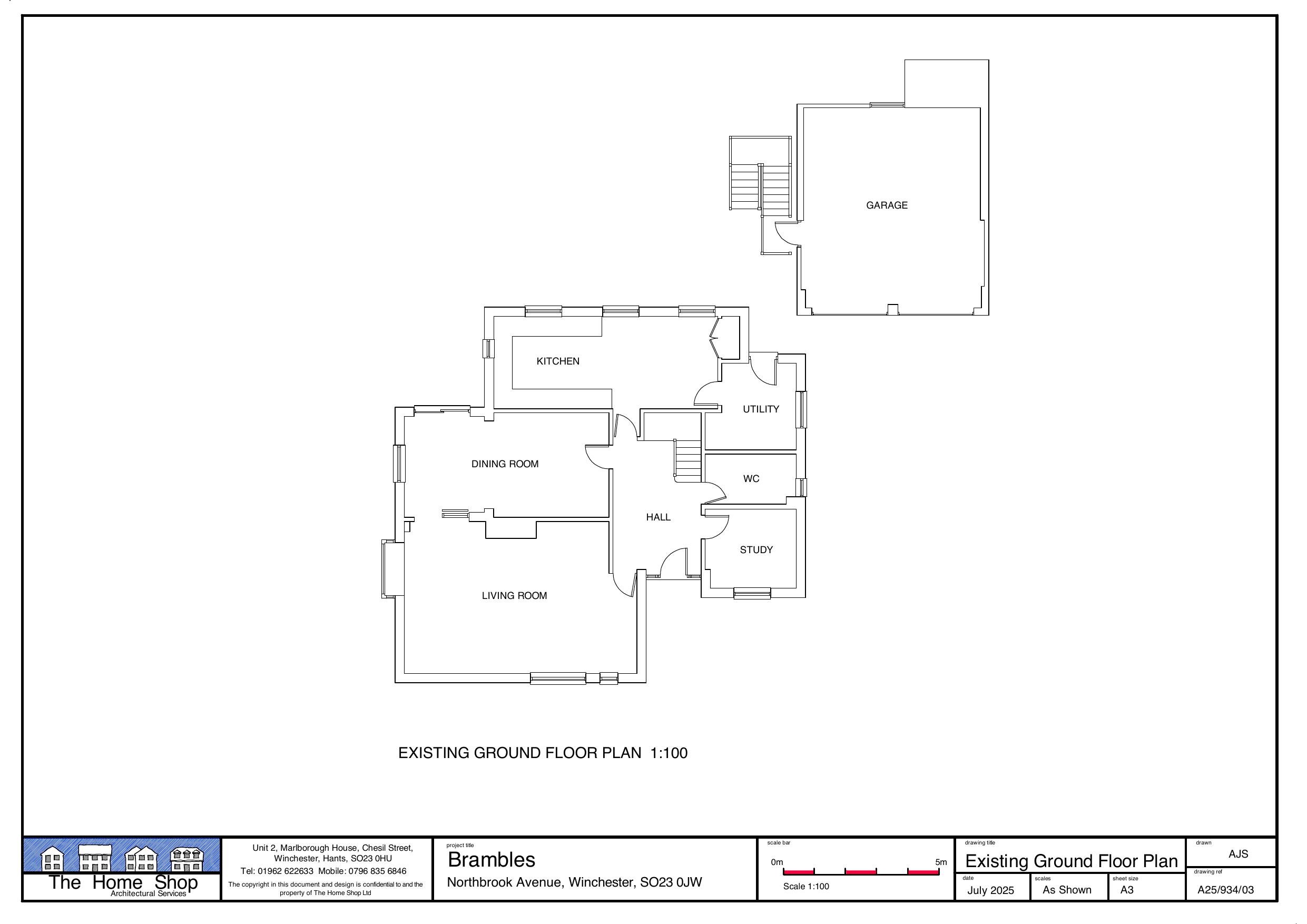
PART SINGLE STOREY AND PART TWO STOREY EXTENSIONS AND ALTERATIONS TO DWELLING.

Type n/a
Status Current
Date 03 Jan 2025

Non-material amendment altering occupancy limits and seasonal occupation conditions for boarding houses.

Type n/a
Status Awaiting decision
Date 12 Nov 2025

Non-material amendment requiring upgrade to waterless urinals and metered water usage details for student accommodation.

Type n/a
Status Awaiting decision
Date 12 Nov 2025

External alterations to some of the house types

Type n/a
Status Current
Date 19 Nov 2025

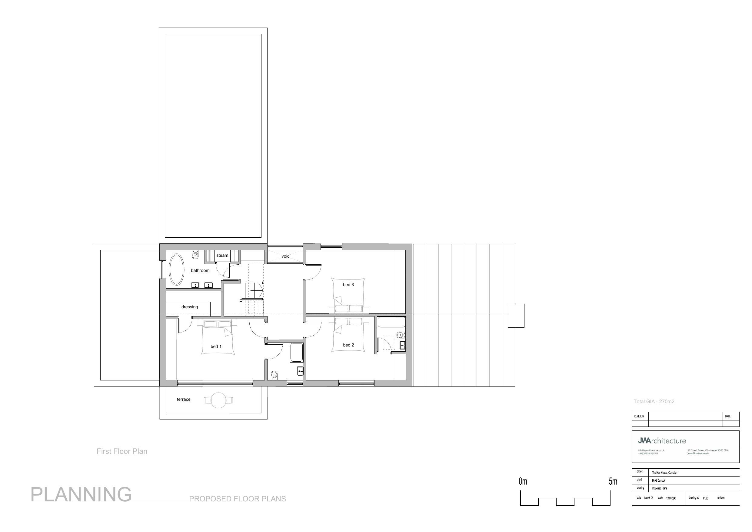
Erection of a self-build dwelling with solar panels, access, parking, landscaping and associated works.

Type n/a
Status Current
Date 25 Nov 2025

Convert industrial warehouse to five dwellings and construct two further homes with parking and landscaping.

Type n/a
Status Current
Date 13 Oct 2025

Construction and occupation for residential use (new dwelling).

Type n/a
Status Current
Date 05 Aug 2025

Add extra storey to provide two flats, minor external alterations, and connection to neighbouring listed building.

Type n/a
Status Current
Date 19 Aug 2025

Add extra storey to provide two flats, minor external alterations, and connection to neighbouring listed building.

Type n/a
Status Current
Date 19 Aug 2025

Change of use to mixed agriculture, storage and siting of caravans for residential occupation.

Type n/a
Status Current
Date 27 Aug 2025
Plan thumbnail

Change of use of land to residential and erection of solar panels on dwelling roof.

Type n/a
Status Awaiting decision
Date 22 Aug 2025

Refurbish Grade II listed office; retain ground-floor office and create two 2-bed apartments above.

Type n/a
Status Decided
Date 08 Jul 2025

Refurbish Grade II listed office; retain ground-floor office and create two 2-bed apartments above.

Type n/a
Status Decided
Date 07 Jul 2025
Plan thumbnail

Phased scheme erecting four detached dwellings, package treatment plant and landscaping.

Type n/a
Status Decided
Date 21 Aug 2025
Plan thumbnail

Change of use to keeping horses and stationing residential caravans, plus erection of ancillary dayroom.

Type n/a
Status Current
Date 08 Sep 2025
Plan thumbnail

Replace existing house with a self-build dwelling; part agricultural land to residential.

Type n/a
Status Decided
Date 18 Sep 2025

Permission in principle for up to two new dwellings.

Type n/a
Status Decided
Date 09 Jan 2025

Remove diseased common beech adjacent to parking and residences due to fungal decay and safety risk.

Type n/a
Status Decided
Date 10 Feb 2025
Plan thumbnail

Provision of 5 dwellings using existing farm track and access, resurfacing track.

Type n/a
Status Decided
Date 24 Feb 2025

Create six caravan pitches and convert three buildings to Class C3 dwellings.

Type n/a
Status Current
Date 24 Feb 2025

Screening request for proposed residential development at Land West of Salters Lane, Winchester.

Type n/a
Status Decided
Date 27 Feb 2025

Construction of up to 3-5 residential dwellings with associated access and landscaping.

Type n/a
Status Decided
Date 18 Mar 2025

Construction of a new building for residential (Class C3) use.

Type n/a
Status Decided
Date 13 Mar 2025

Use of land for siting of one mobile home (residential).

Type n/a
Status Decided
Date 31 Mar 2025
Plan thumbnail

Replacement development: two new dwellings after demolition.

Type n/a
Status Decided
Date 26 Mar 2025
Plan thumbnail

Erection of one self-build three-bedroom dwelling with parking, landscaping and change of use to residential.

Type n/a
Status Decided
Date 16 Apr 2025

Change of use from agricultural to mixed agricultural and residential use at Cupressus.

Type n/a
Status Decided
Date 16 Apr 2025
Plan thumbnail

Construction of timber vehicle store and extension of the existing dwelling's residential use.

Type n/a
Status Decided
Date 15 May 2025

Refurbish dilapidated house to provide a residential dwelling.

Type n/a
Status Current
Date 21 Mar 2025
Plan thumbnail

Demolish Esso garage, build 6 new dwellings on site.

Type n/a
Status Current
Date 14 Aug 2025