← Back to Winchester City Council

Status

Current
Received
09 Dec 2025
New dwellings
n/a

Full Proposal

Demolition of existing building and the erection of 9 residential dwellings, with associated access, landscaping and parking.

Documents

APPLICATION FORM - WITHOUT PERSONAL DATA
Application Form
Not archived · Council Link
ARBORICULTURAL IMPACT APPRAISAL AND METHOD STATEMENT
Background Papers
Not archived · Council Link
BIODIVERSITY METRIC
Biodiversity
Not archived · Council Link
BIODIVERSITY NET GAIN ASSESSMENT
Biodiversity
Not archived · Council Link
BNG CALCULATOR
Biodiversity
Not archived · Council Link
CITY OF WINCHESTER TRUST-OBJECTS(FULL)
Public Comment
Not archived · Council Link
DR SUSAN COLLEY-SUPPORTS(FULL)
Public Comment
Not archived · Council Link
DRAINAGE PLANNING ENGINEERING LAYOUT
Drawing
Not archived · Council Link
ECOLOGICAL ASSESSMENT
Biodiversity
Not archived · Council Link
EXISTING FIGURE GROUND PLAN
Drawing
Not archived · Council Link
EXISTING SITE LAYOUT
Drawing
Not archived · Council Link
HCC HIGHWAYS
Consultee Comment
Not archived · Council Link
LANDSCAPE MAINTENANCE PLAN
Background Papers
Not archived · Council Link
LANDSCAPING STRATEGY PLAN
Drawing
Not archived · Council Link
MR BRIAN MILLS-OBJECTS(FULL)
Public Comment
Not archived · Council Link
MR BRIAN MILLS-OBJECTS(FULL)
Public Comment
Not archived · Council Link
MR GRAHAM SMITH-SUPPORTS(FULL)
Public Comment
Not archived · Council Link
MRS LESLEY KYTE-OBJECTS(FULL)
Public Comment
Not archived · Council Link
MRS PADDY SELIGMAN OBE DL-SUPPORTS(FULL)
Public Comment
Not archived · Council Link
NUTRIENT BUDGET CALCULATOR
Background Papers
Not archived · Council Link
NUTRIENT STATEMENT
Background Papers
Not archived · Council Link
OPPORTUNITIES & CONSTRAINTS PLAN
Drawing
Not archived · Council Link
PLANNING DESIGN & ACCESS STATEMENT
Background Papers
Not archived · Council Link
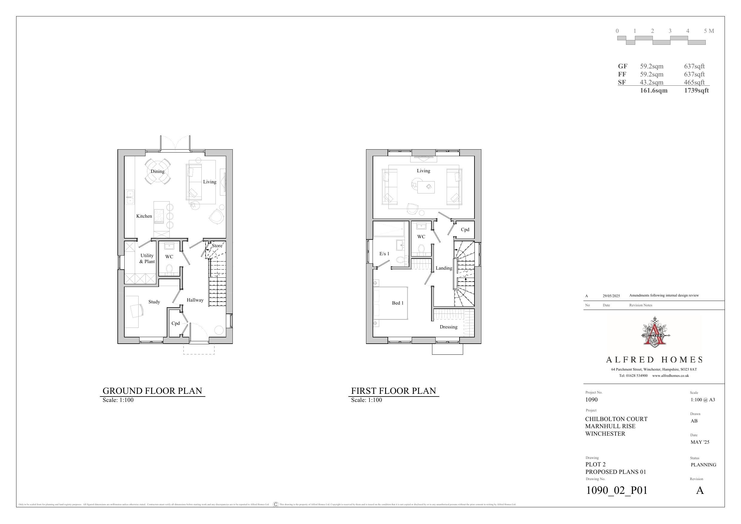
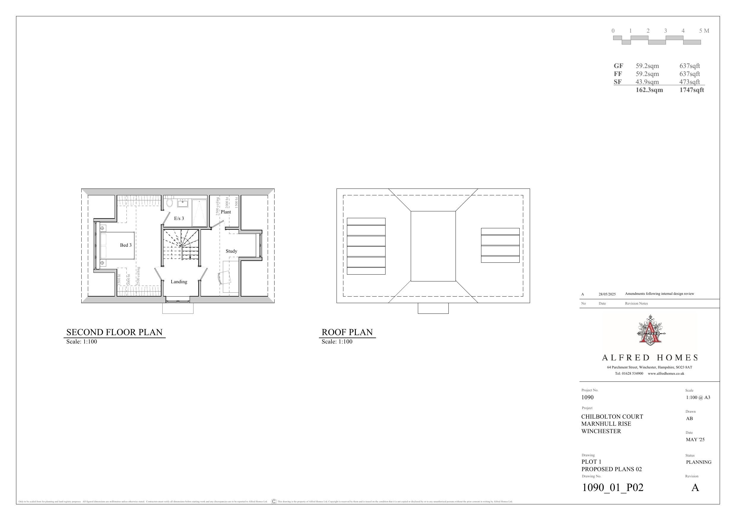
PLOT 1 PROPOSED ELEVATIONS
Drawing
Not archived · Council Link
PLOT 2 PROPOSED ELEVATIONS
Drawing
Not archived · Council Link
PLOT 3 GARAGE PLANS & ELEVATIONS
Drawing
Not archived · Council Link
PLOT 5 PROPOSED ELEVATIONS
Drawing
Not archived · Council Link
PLOT 6 PROPOSED ELEVATIONS
Drawing
Not archived · Council Link
PLOT 7 GARAGE PLANS & ELEVATIONS
Drawing
Not archived · Council Link
PLOT 7 PROPOSED ELEVATIONS
Drawing
Not archived · Council Link
PLOTS 3 & 4 PROPOSED ELEVATIONS 01
Drawing
Not archived · Council Link
PLOTS 3 & 4 PROPOSED ELEVATIONS 02
Drawing
Not archived · Council Link
PLOTS 4 & 5 GARAGE PLANS & ELEVATIONS
Drawing
Not archived · Council Link
PLOTS 8 & 9 PROPOSED ELEVATIONS
Drawing
Not archived · Council Link
PROPOSED FIGURE GROUND PLAN
Drawing
Not archived · Council Link
PROPOSED SITE LAYOUT
Drawing
Not archived · Council Link
SKETCH
Background Papers
Not archived · Council Link
SKETCH
Background Papers
Not archived · Council Link
SOUTHERN WATER COMMENTS
Consultee Comment
Not archived · Council Link
STOREY HEIGHT PLAN
Drawing
Not archived · Council Link
TRANSPORT ASSESSMENT
Background Papers
Not archived · Council Link
TREE PROTECTION PLAN
Background Papers
Not archived · Council Link
WCC LANDSCAPE ARCHITECT
Consultee Comment
Not archived · Council Link

Take Action

Make your voice heard. Authorities need to hear from people who support new homes.

✉️ Write Email in Support View on Council Portal